Calling all local farmers and homesteaders! What would you like to see in a Community Kitchen? We want to hear from you!

Click Here to take the survey!

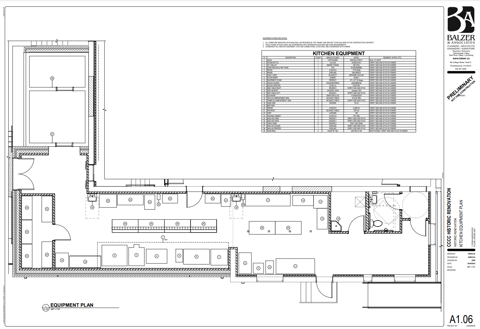
Lena Huckstep Kitchen 

Mrs. Lena Huckstep, the Calfee Training School’s beloved cook, is remembered fondly for her beans and cornbread. She ensured all students had enough to eat and felt loved and appreciated. The CCCC’s community kitchen bearing her name will revive her legacy by providing a commercial space in which local food entrepreneurs can build successful businesses, local food producers can connect more directly with local markets, and community residents can access affordable, nutritious meals.

This nearly 1,400 sq ft commercial kitchen is designed to include two workspaces allowing two cooking teams to work at the same time. Commercial-grade kitchen equipment, cold and dry storage will be available for all kitchen users. The CCCC received a grant from the Virginia Agriculture and Forestry Industries Development program to hire experienced consultants to produce a kitchen design, inventory, and business plan that will facilitate these ambitious plans. These consultants worked with a committee of food-related stakeholders to design future plans for the kitchen.

The first phase of the kitchen has been constructed and is currently serving the Harmon Learning Center. The full expanded kitchen is on track to be open by early 2026.

Huckstep Kitchen Floor Plan and Equipment Schedule